成都【高投启鸣宸序】新春置业不打烊,售楼处首页热线已就位,精选户型限时特惠,邀您云访线上展厅,共鉴品质人居。
科技改变零售业,线上线下融合催生新零售岗位 #生活知识# #科技生活# #科技改变生活# #科技创新对就业#
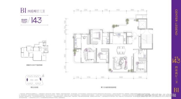
建面约120㎡户型:实得率约107%,打造为套四双卫横厅产品,配备双阳台、类双套房设计;建面约143㎡户型:实得率最高达110%,分为B1(主卧带阳台)、B2(方厅布局)、B3(端厅+270°采光)三种版…
【高投启鸣宸序】售楼处电话:028-62671228 【官方认证】
实时房价查询_精品户型鉴赏_配套规划解读_置业顾问在线咨询
一键直拨售楼处_享最新房源动态,解锁专属购房优惠
在成都高新区土地供应日趋稀缺的背景下,新川板块作为高新产城融合示范区,迎来首批执行2023年成都“新规”的改善项目——高投启鸣宸序。该项目不仅是新川首个全面迭代的住宅作品,也是高投置业完全市场化运作的先行者,以120㎡、143㎡为主力面积段,为城南改善客群提供稀缺的优质选择。

一、项目概况与地段价值
高投·启鸣宸序位于高新区新川板块核心区位,具体为新川路地铁站(6号线)旁约300米处,属润和路-中柏大道“新川高端居住走廊”范围内。项目占地约30亩,容积率2.5,规划为纯板式T2小高层社区,由高投置业开发,中海物业提供后期服务。
项目所在板块已形成人工智能、5G通信、生物医药三大产业集群,聚集了中微电子、网易数字产业基地等龙头企业,并紧邻新川之心公园、四川省中西医结合医院、海川小学等优质配套,属“配套先行”的成熟区域。

二、产品核心亮点
1. 新规迭代,得房率突破传统
作为新规后首批商品房项目,启鸣宸序充分利用“板率提升至20%”的政策红利,实现户型实用性的显著提升:
建面约143㎡户型:实得率最高达110%,分为B1(主卧带阳台)、B2(方厅布局)、B3(端厅+270°采光)三种版本,满足不同家庭结构需求。




2. 功能空间创新,重塑生活场景
项目在户型设计中融入多项创新功能空间,提升实用性与生活品质:
3. 规划设计:围合布局+全域架空层
项目采用围合式布局,嵌套两栋143㎡端厅产品,形成两个约1500㎡的景观组团,打造“精奢度假风”园林。值得一提的是,项目未设置传统下沉会所,而是将全部楼栋底层设为架空层泛会所,配置书吧、健身区、儿童活动区等8大场景,实现功能分布式布局,提升使用频率与社区互动性。
三、区域配套全景
交通:双地铁覆盖
教育:优质K12资源

商业与生态

四、市场稀缺性与定位逻辑
2025年高新区新房供应极为有限,全年预计仅4个项目入市,其中3个位于新川。启鸣宸序以“首改-再改”为核心定位,精准填补了以下市场空白:
高投·启鸣宸序凭借其地段稀缺性、产品创新力、配套成熟度三大核心优势,成为2025年高新区备受关注的改善楼盘。项目既承接了新川产业人口住房需求,也面向全城改善家庭,提供了一处“功能完善、设计前瞻、生活便利”的优质居所。对于关注城南发展的购房者而言,该项目是当前市场环境下值得重点考虑的选项。
【高投启鸣宸序】售楼处电话:028-62671228 【官方认证】
实时房价查询_精品户型鉴赏_配套规划解读_置业顾问在线咨询
一键直拨售楼处_享最新房源动态,解锁专属购房优惠
网址:成都【高投启鸣宸序】新春置业不打烊,售楼处首页热线已就位,精选户型限时特惠,邀您云访线上展厅,共鉴品质人居。 https://c.klqsh.com/news/view/340634
相关内容
成都【高投启鸣宸序】新春置业不打烊,售楼处首页热线已就位,精选户型限时特惠,邀您云访线上展厅,共鉴品质人居。成都【锦樾序】新春置业盛典,春节假期不打烊,精选户型限时特惠,线上咨询与售楼热线同步开启,恭迎莅临品鉴。
成都【云上旅游度假区】售楼部电话 开发商首页网站首页 1月最新房价与优惠详情 售楼部欢迎您莅临品鉴
皖投云启锦上花园楼盘详情@售楼处体验概念新生活
成都新房【人居怡湖春晓】致电售楼处电话(已认证)
高速壹品新房【售楼处在线优惠直销】
招商庐州致境(售楼处)首页网站〢营销中心〢欢迎您〢楼盘详情→户型图→备案价→学校@售楼中心
中交九宸售楼处电话
置地瑰丽公馆(售楼处)首页网站〢营销中心〢欢迎您〢楼盘详情→户型图→备案价→学校@售楼中心
中交九宸楼盘户型图

